Villa pareada situada en el residencial Origo Mare, en La Oliva.
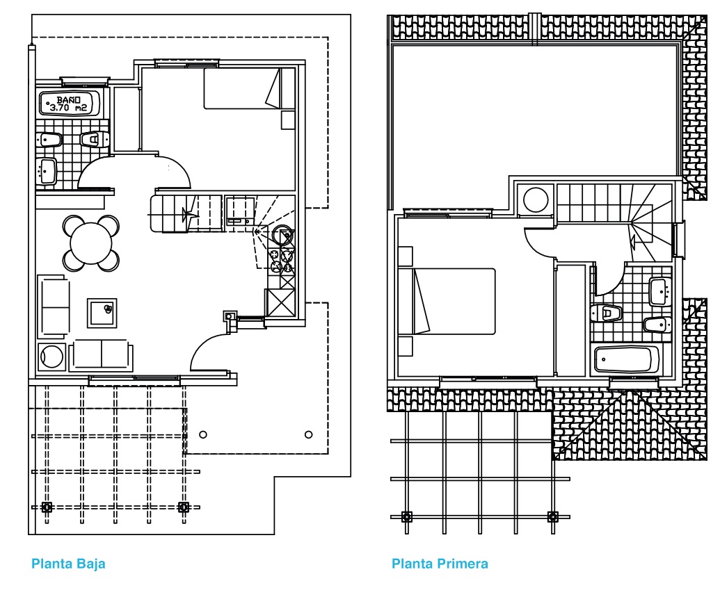
Con un diseño funcional y acogedor, esta propiedad de dos plantas ofrece todo lo que necesitas para disfrutar de la vida en la isla. En la planta baja, encontrarás un luminoso salón-cocina, un dormitorio y un baño, ideal para la comodidad diaria. En la planta alta, se sitúa otro dormitorio con su propio baño y una amplia terraza de aproximadamente 17 m², perfecta para relajarte bajo el sol.
Cuenta además, con un jardín privado de aproximadamente 220 m², donde podrás disfrutar de momentos al aire libre rodeado de naturaleza.
Totalmente amueblada y equipada, esta casa está lista para entrar a vivir. Además, el residencial cuenta con piscina comunitaria y zonas verdes
No pierdas la oportunidad de vivir en un entorno tranquilo y soleado, ideal para disfrutar del clima majorero. ¡Ven a visitarla y enamórate de tu nuevo hogar!
*Las fotos corresponden a diferentes inmuebles del residencial.














